
NOS PORTES DE SÉCURITÉ

ROMA
Porte de sécurité coplanaire avec charnières invisibles. La structure en tôle avec des renforts spéciaux verticaux et horizontaux, contient le groupe serrure et les protections côté charnière. Le cadre en tôle garantit la robustesse de toute la structure afin d'obtenir des performances élevées dans la résistance à l'effraction. Les finitions sont en tôle peint. La finition du cadre sur le côté intérieur est du même matériau que le revêtement. Différents systèmes de fermeture sont disponibles eu version mécaniques. Chaque porte peut être revêtue des panneaux qui s'adaptent le mieux à l'environnement qui l'entoure.
Vantail: Structure en tôle galvanisée de 0,8 mm
Renforts horizontaux N° 2 en tôle galvanisée de 1,2 mm
Renforts verticaux N° 1 en tôle galvanisée de 0,8 mm
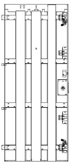
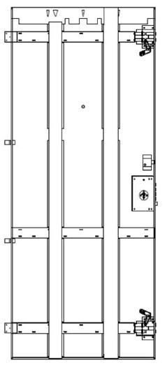
Serrure serrure de sécurité à cylindre à 2 pistons plus demi-pen
Déviateurs n° 2 du type à 1 piston de sécurité
Charnières n° 2 du type invisible
Panneaux interieur en divers matériaux d'épaisseur 6 mm.
Panneaux exterieur différents matériaux ed espaisseur, butée latérale à 6 mm.
Carénage En aluminium avec joint optional sur le côté intérieur
Cadre et pre-cadre
Cadre en tole En epaisseur 15/10 galvanisée avec joint
Renfort antieffraction En tôle galvanisée peint da 2,5 mm


TORINO
Porte de sécurité coplanaire avec charnières invisibles. La structure en tôle avec des renforts spéciaux verticaux et horizontaux, contient le groupe serrure et les protections côté charnière. Le pre-cadre en tôle garantit la robustesse de toute la structure afin d'obtenir des performances élevées dans la résistance à l'effraction. Les finitions en aluminium peint donnent l'élégance et le raffinement italien. Différents systèmes de fermeture sont disponibles aussi bien mécaniques que motorisés. Chaque porte peut être revêtue des panneaux qui s'adaptent le mieux à l'environnement qui l'entoure.
Structure de porte:
Vantail: Structure en tôle galvanisée de 0,8 mm
Renforts horizontaux n° 2 en tôle galvanisée de 1,2 mm
Renforts horizontaux central n° 1 en tôle galvanisée de 1,2 mm
Renforts verticaux n° 2 en tôle galvanisée de 0,8 mm
serrure De sécurité à cylindre à 4 pistons plus demi-pen
déviateurs n° 2 du type à double pistons de sécurité
charnières n° 2 du type invisible
pions antidegondage N° 2 d'epaisseur 5 mm
entrebailleur Avec fermetures nuit
Habillage:
Panneaux interieur en divers matériaux de 6 mm d'épaisseur.
Panneaux exterieur différents matériaux ed espaisseur, butée latérale à 6 mm.
Moulures de finition optionales
Finition:
Carénage En aluminium avec joint sur le côté intérieur
Seuille mobile de serie
Cadre et pre-cadre:
Pre-cadre en tole En tôle galvanisée en epaisseur 20/10 galvanisée
Cadre en aluminium Entièrement en aluminium assorti au carénage
Renfort antieffraction En tôle galvanisée peint da 2,5 mm
FIRENZE
Porte de sécurité coplanaire avec charnières invisibles. La structure en tôle avec des renforts spéciaux verticaux et horizontaux, contient le groupe serrure et les protections côté charnière. Le cadre en tôle garantit la robustesse de toute la structure afin d'obtenir des performances élevées dans la résistance à l'effraction. Les finitions sont en aluminium sur la porte. La porte est équipée de double joint pour donner un maximum de confort acoustique à l'utilisateur. Différents systèmes de fermeture sont disponibles aussi bien mécaniques que motorisés. Chaque porte peut être revêtue des panneaux qui s'adaptent le mieux à l'environnement qui l'entoure.

Vantail: Structure en tôle galvanisée de 1,2 mm
Renforts horizontaux n° 2 en tôle galvanisée de 1,2 mm
Renforts horizontaux central n° 2 en tôle galvanisée de 1,2 mm
Renforts verticaux n° 3 en tôle galvanisée: 1 de 1,2 mm les autres de 0,8 mm
serrure serr. de sécurité à cylindre silencieux à 4 pistons + demi-pen
déviateurs n° 4 du type à double pistons de sécurité
charnières n° 2 du type invisible
pions antidegondage N° 2 pions antidegondage d'epaisseur 5 mm
Panneaux interieur en divers matériaux de 6 mm d'épaisseur.
Panneaux exterieur différents matériaux ed espaisseur, butée latérale à 6 mm.
Carénage En aluminium avec joint sur le côté intérieur
Pre-cadre en tole En tôle galvanisée en epaisseur 20/10 galvanisée
Cadre en aluminium entièrement en aluminium assorti au carénage
Renfort antieffraction En tôle galvanisée peint da 2,5 mm




